New From Solar Home Builders
378 Sq Ft Tiny Home
378 Sq Ft, 1 Bed, 1 Bath – Starting price $63,500. (1) (2)

Studio Homes
Studio – 510 Sq Ft + 100 Sq Ft patio – Starting price $85,500. (1) (2)

1 Bedroom Homes
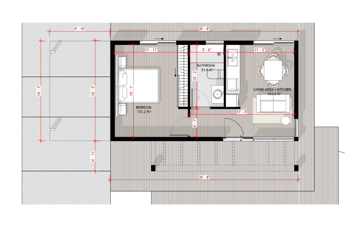
1 Bed, 1 Bath – 731 Sq Ft + 100 Sq Ft patio – Starting price $129,346. (1) (2)

2 Bedroom Homes
2 Bed, 1 or 2 Bath – 931 Sq Ft + 100 Sq Ft patio – Starting price $161,546. (1) (2)

3 Bedroom Homes
3 Bed, 2 Bath – 1232 Sq Ft + 100 Sq Ft patio – Starting price $214,512. (1) (2)

All configurations include Countertops, Single Piece Shower Pans, Toilet(s), Engineered Wood Floors, On Demand Electric Water Heater, Solar Windows, Solar Walls and LED Lighting Throughout. Solar Roofs Are Optional.
(1) Prices subject to change!
(2) Pricing does not include land, permits, foundation, plumbing and electrical to the foundation, connection to electricity and sewage, or construction costs. Septic is required where there is no city sewage.





























